
Indicadores ambientales
-
Emisiones de CO₂: 304,67 kg CO₂/m²
Reducción del 59,4 % respecto a un valor medio para todo tipo de edificios de 750 kg CO₂/m², calculado por SO. Se han evitado un total de 257.810,44 kg de CO₂. -
Demanda energética conjunta de refrigeración y calefacción: 4,80 kWh/m²
Reducción del 84 % respecto al límite de vivienda pasiva de 15,00 + 15,00 kWh/m².
Las emisiones asociadas a la demanda energética a lo largo de la vida útil son de 0,85 kg CO₂/m²·año, con un ahorro anual total de 2.192,57 kg de CO₂. -
Residuos durante la obra: 20,11 t (0,03 t/m²)
Reducción del 50 % respecto al cálculo teórico para un edificio medio equivalente. -
Consumo de agua durante la vida útil: 88 litros por persona y día
Reducción del 30 % respecto al consumo medio en las Islas Baleares, según el INE.

Concepto
Esta vivienda social es un prototipo destinado a afinar y demostrar la viabilidad de materiales locales de bajo carbono en estructuras simples de compresión, recuperando un modelo en el que
«la calidad de la arquitectura proviene del apilamiento de la masa, en lugar de la transformación de las cualidades físicas y químicas de los materiales»
A. Cuchí, 2007.
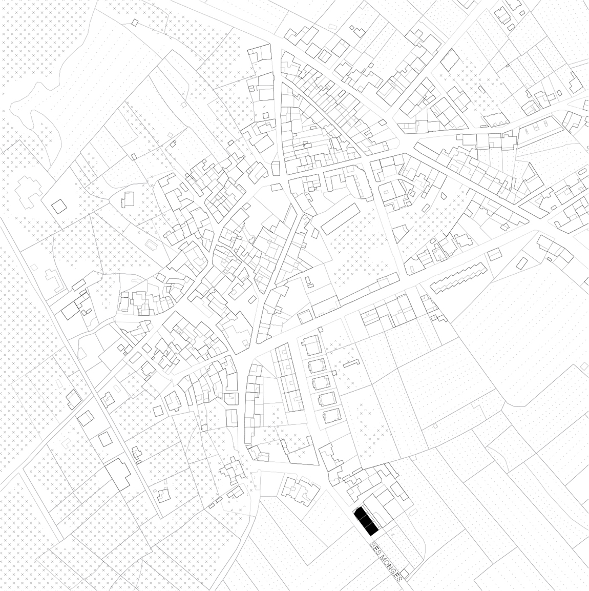
Contexto urbano
Santa Eugènia es un pequeño y pintoresco municipio situado a 20 minutos de Palma. La integración paisajística fue esencial para erradicar el estigma que históricamente ha acompañado a la vivienda social en las Islas Baleares. Sin embargo, el paisajismo no se ha resuelto desde la forma, sino desde el uso de materiales locales de bajo carbono y la actualización de técnicas constructivas vernáculas como la manera más eficiente de emplear estos recursos. Al finalizar las obras, algunos vecinos sorprendidos comentaron:
«¡No han estropeado el pueblo!»

Programa y clima
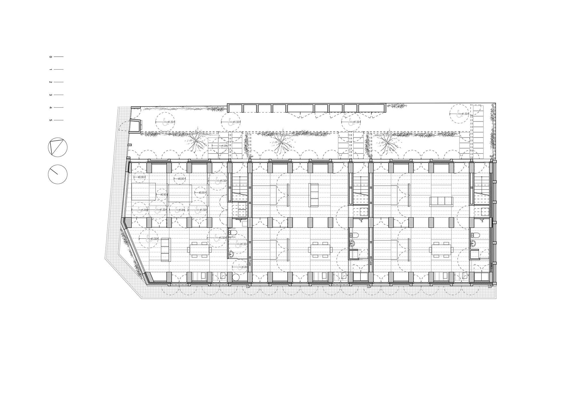
Tres viviendas se sitúan en planta baja y otras tres en planta primera. El acceso se realiza a través de un patio posterior que actúa como espacio común lo más verde posible, reforzando el sentido de comunidad. Además, todas las viviendas disponen de un pequeño patio exterior privado en el acceso.
El clima de Mallorca es mediterráneo semiárido y se prevé que el riesgo de sequía aumente con el cambio climático. Las zonas verdes y los dispositivos bioclimáticos forman parte esencial del funcionamiento térmico del edificio; por ello, es fundamental que puedan mantenerse en condiciones de sequía y altas temperaturas sin incrementar significativamente el consumo de agua. Para ello se han seleccionado especies autóctonas resistentes y de bajo requerimiento hídrico, regadas con agua de lluvia almacenada. Se han conservado dos árboles preexistentes en la parcela: un almez mediterráneo y un granado.

Nuevo modelo productivo y repetición
Las emisiones globales de CO₂ han aumentado de 5 gigatoneladas (Gt) a 37Gt anuales en el último siglo (GPC, 2022).
La Tierra —a través de océanos y suelos— solo puede absorber 19Gt de CO₂ al año, equivalente al presupuesto de carbono disponible a escala mundial. Es decir, se consume el doble de lo que el planeta puede asumir.

El Green Building Council (GBCe) ha calculado el presupuesto de carbono del sector de la edificación en España y, para cumplir los objetivos vinculantes de descarbonización de la Comisión Europea, se requiere una reducción del 52% de las emisiones en 2030 y del 92% en 2050. Diseñar con un presupuesto de carbono supone un cambio de paradigma total.

Una de las opciones para lograr esta reducción —en un plazo de cinco años— consiste en recuperar la capacidad de construir con el propio territorio, buscando la máxima autosuficiencia posible bajo el paradigma del decrecimiento y la justicia social global: recuperación y preservación de recursos locales de bajo carbono, industrias locales que impulsen la transición energética, upcycling de recursos previamente considerados residuos, etc. Estas estrategias forman parte del «Mapa de Recursos» y permiten reducciones inmediatas del CO₂ incorporado que cumplen ya el objetivo del 52%. Además, estos recursos locales imponen límites:
¿cuánto podemos construir y qué usos deberíamos priorizar?

El proyecto de Santa Eugènia es la actualización 2.0 de las 8 viviendas sociales de la c/ Salvador Espriu 39, en Palma (2018–2021), y desarrolla la investigación de un nuevo modelo de producción y consumo basado en el «Mapa de Recursos», iniciado en Reusing Posidonia (2012–2020), un proyecto de adaptación al cambio climático financiado por el programa LIFE+ de la UE. Durante el seguimiento de las viviendas se constató tanto la necesidad de incorporar masa para obtener inercia térmica en verano como el carácter innecesario de los sistemas activos de calefacción en edificios bien aislados en clima mediterráneo. Se trata de un proceso continuo de aprendizaje y mejora mediante la repetición, cuyo objetivo es desarrollar progresivamente un sistema constructivo de bajo carbono más depurado, sencillo y rápido.

Las dos principales mejoras respecto a los proyectos anteriores son la mayor reducción de la demanda energética conjunta —refrigeración y calefacción— mediante sistemas exclusivamente bioclimáticos, y la estandarización/repetición de elementos constructivos para minimizar la inversión económica inicial asociada a los materiales locales de bajo carbono: arenisca en estructura y fachadas, madera FSC en cerchas y carpinterías, carpintería interior de madera reutilizada, Posidonia oceanica como aislamiento de cubierta, etc. En este caso, todos los vanos entre pilastras son iguales (160 cm) para facilitar la ejecución. Lo mismo ocurre con los huecos de fachada, dispuestos según ejes verticales para simplificar la construcción de muros y dinteles.

Mapa de recursos y confort
La prioridad principal es el confort y la minimización de la pobreza energética mediante soluciones bioclimáticas y materiales de proximidad. La demanda total de energía para calefacción y refrigeración se ha calculado en 4,80 kWh/m². Incluso en un escenario de +2°C (límite del Acuerdo de París) para el periodo 2041–2070, se prevé una demanda conjunta de tan solo 6,4 kWh/m². El agua caliente sanitaria (ACS) se produce mediante bombas aerotérmicas y paneles fotovoltaicos. No obstante, la eficiencia energética proviene fundamentalmente de la propia arquitectura.
En verano, las estrategias pasivas son la inercia térmica (masa) y el confort higrométrico proporcionados por la piedra, la ventilación cruzada orientada a la brisa marina predominante (Embat) con apoyo de ventiladores de techo, la protección solar mediante persianas tradicionales de madera y un aislamiento térmico de 10 cm en muros y 24 cm en cubierta.

En invierno, las estrategias pasivas son un aislamiento térmico muy elevado —para clima mediterráneo— y una gran superficie acristalada para captar la máxima radiación solar. La renovación de aire se realiza mediante un muro de convección tipo Trombe de baja tecnología (accionado por un ventilador de 50 W) orientado al sur, hacia una parcela colindante no edificable según la normativa urbanística vigente. Durante los meses fríos, el aire exterior se templa por convección en el muro Trombe y se distribuye a las seis viviendas mediante ventilación mecánica a través de conductos individuales.
El confort del edificio está siendo monitorizado en colaboración con la Universidad de las Islas Baleares (UIB), tanto para verificar y optimizar la eficiencia del sistema en futuros proyectos como para aportar valores de referencia a futuras normativas.

Tras el mapeo de recursos, se evitó el 50% de la generación de residuos en fase de obra y se redujeron en un 59,4% las emisiones de CO₂ incorporadas durante la construcción, gracias al abastecimiento sostenible y a la minería urbana de un pequeño cobertizo preexistente en la parcela, cuyos elementos constructivos han sido íntegramente recolocados en la nueva obra: persianas, puertas, baldosas y bloques de arenisca —reutilizados en el zócalo del edificio, dejando visibles las marcas de corte, como nos mostró TEd’A hace unos años en Can Jordi i n’Àfrica—. Todas las puertas interiores y particiones están realizadas con madera procedente de demolición. Las tablas macizas reutilizadas de la estructura de la cubierta inclinada proceden de una antigua fábrica y soportan los 25 cm de aislamiento de Posidonia oceanica. Este aislamiento, con λ=0,044 W/mK, hace visible que
«no vivimos en una casa, vivimos en un ecosistema».

El uso de las hojas de esta planta marina endémica del Mediterráneo, considerada hábitat prioritario por la UE, requiere autorización del organismo público competente y solo pueden ser recogidas por gestores autorizados en marzo-abril, ya que las hojas muertas depositadas en la playa protegen el sistema dunar de los temporales de invierno. Una vez en obra, las hojas se secan al sol sin tratamiento adicional y se compactan manualmente a granel en la cubierta. Debido a su composición química, no existe depredador terrestre que pueda afectarlas, por su contenido en compuestos fenólicos, sulfuros y sulfitos, de carácter fitotóxico.

La arenisca local (marès) es un material de bajo carbono que aporta masa e inercia, prolonga la vida útil del edificio y es 100% reutilizable.
Las tres viviendas de planta baja se organizan mediante dos bóvedas de cañón paralelas de piedra de 3,5 m de luz, apoyadas sobre tres ejes de pilastras también de piedra, con una base de 40×80cm. Los espacios pueden compartimentarse mediante puertas correderas de madera del tamaño de un muro.

Las fachadas se resuelven mediante dos muros de piedra autoportantes paralelos, de 10 cm de espesor cada uno, con un aislamiento térmico intermedio de 10 cm de algodón reciclado, confinado entre dos láminas impermeables transpirables, siendo la interior de tipo Intello con valor SD variable. El muro interior aloja las pilastras de las bóvedas y el muro exterior protege el paquete aislante. Para reducir el número de anclajes entre ambos, la hoja exterior incorpora pilastras sobresalientes 10 cm que incrementan su rigidez y estabilidad. Solo se emplean dos anclajes de acero inoxidable por pilastra, situados a la cota de arranque de los dinteles de cada planta, facilitando así el control de la ejecución. La construcción define la expresión del edificio.

Las tres viviendas de la planta superior —con accesos independientes y escaleras de uso privativo— se organizan en un único espacio diáfano bajo la cubierta inclinada, sustentada por cerchas de madera “a la española” de 9,6 m de luz, con tabiques interiores de madera —y aislamiento acústico— que delimitan dos dormitorios, cada uno con dos puertas.

Una de las principales mejoras para acelerar la construcción ha sido la optimización del mortero de juntas, estudiado para permitir el apilado de varios bloques de piedra en una misma jornada mediante grúa, sin necesidad de cuñas y sin riesgo de aplastamiento por el peso propio. Para facilitar la ejecución de las bóvedas, se han utilizado dinteles monolíticos de piedra entre pilastras, procedentes de otra cantera que proporciona un material de mayor resistencia y con un peso aproximado de 840 kg por unidad.

Criterios de diseño con perspectiva de género
Las estancias no son jerárquicas. Todas las habitaciones son equivalentes, evitando la distinción entre dormitorios dobles e individuales; no existen baños en suite y cuentan con una superficie generosa que no determina su uso, entre 12 y 13 m², incluyendo espacio de almacenaje.

La cocina se sitúa en una posición central de la vivienda, integrada con los espacios comunes de estar, con conexión visual entre todas las áreas para visibilizar los cuidados y las tareas domésticas.

La distribución mediante particiones móviles de madera reutilizada es flexible y adaptable a las distintas etapas vitales y situaciones familiares, permitiendo la transformación y evolución de la vivienda de forma sencilla, sin necesidad de obra. La durabilidad es una de las principales estrategias de circularidad del edificio y requiere una alta flexibilidad de usos a lo largo del tiempo. Resulta significativo que estructuras de piedra aparentemente rígidas, combinadas con particiones de madera, generen una planta flexible.

Autosuficiencia y ciudad
La autosuficiencia en los procesos constructivos difumina el límite entre el espacio productivo urbano y el rural, ya que la ciudad se construye con materiales del territorio adyacente. Antes de la Revolución Industrial, los agricultores nunca tuvieron que preocuparse por la integración paisajística. La recuperación del patrimonio cultural se convierte así en una herramienta tanto para alcanzar los objetivos de descarbonización como para recuperar la noción de ciudad como suma de intervenciones anónimas y silenciosas.

En los últimos años, promotores públicos y privados han construido más de 300 viviendas en las Islas Baleares utilizando piedra local en elementos estructurales. Gracias al esfuerzo de arquitectos locales y no locales comprometidos con la recuperación de recursos de bajo carbono, algunas canteras de arenisca han realizado importantes inversiones para modernizar instalaciones y aumentar plantilla, evitando su desaparición y manteniendo el oficio: en los últimos 12 años habían cerrado 12 canteras. Uno de los próximos pasos colectivos en los que se está trabajando es el desarrollo de métodos para aplicar estos materiales a mayor escala y en un nuevo contexto de escasez de mano de obra, acelerado desde la COVID-19 y la crisis de acceso a la vivienda.
Obra: 6 viviendas de alquiler social
Emplazamiento: c/ Ses Monges 21, Santa Eugènia, Mallorca (España)
Autores: Carles Oliver, Xim Moyá
Estructuras: Bernabeu Ingenieros S.L.
Ingeniería: Miquel Ramon Oliver, Esteban Font Hocke (instalaciones EEI)
Dirección de obra: Marco Menéndez, Joan Brunet (arquitectos técnicos)
Consultoría ambiental: Societat Orgànica S.C.C.L.
Colaboradores: Miquel Canyelles, Ernest Bordoy, Eduardo Yuste, Lara Fuster, Jaime Feliu, Miquel Ramon, Aina Pons
Promotor: Instituto Balear de la Vivienda (IBAVI)
Empresa constructora: Obras y Construcciones Tomeu Rosselló S.L.
Proyecto: 2020 – 2023
Superficie construida: 578,92 m²
Fotografías: Milena Villalba
IBAVI




















