
El proceso
El proyecto es el resultado de un proceso que se alargó en el tiempo debido al estado general del edificio en donde su ubicaba el ático. Cuando se empezó proyectar, el edificio estaba en fase de rehabilitación, los trabajos se demoraron mucho más de lo que estaba planificado y además, modificaron la configuración inicial del ático puesto que se ocupó la aparte central del mismo con la caja del nuevo ascensor.
Durante este proceso , reflexionamos junto con nuestro clientes las primeras ideas sobre el espacio, cambiando unas y reafirmándonos en otras, siempre con la premisa inicial de actuar muy poco en el espacio… y esa fue la idea…no hacer NADA.

Nada o casi nada
O casi NADA, el pequeño ático ya nos lo encontramos con la cubierta vista, y el núcleo cerrado en la zona central del espacio debido a la colocación del nuevo ascensor …tratamos de aprovecharlo.
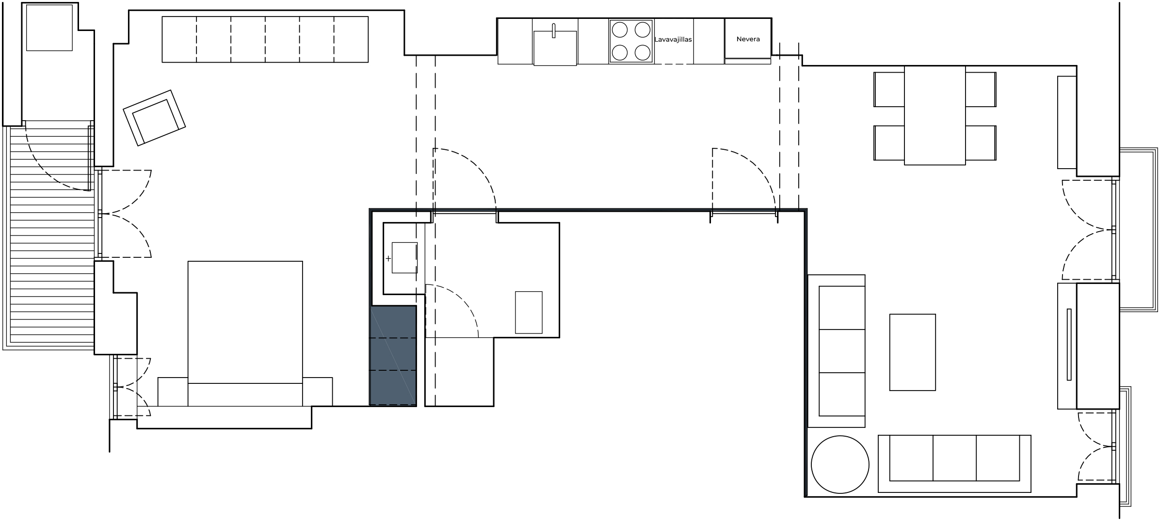
La cubierta, bien conservada, tenía que ser la protagonista, y la hicimos visible en toda la vivienda dando la continuidad y la personalidad al espacio, simplemente una limpieza y un tratamiento un barniz para resaltar su materialidad.
El núcleo central lo regularizamos, insertando las piezas funcionales cerradas que requería el programa de mini vivienda, un baño y almacenamiento, dándole un acabado contínuo que no compitiera ni con la cubierta ni con las medianeras irregulares. Se usó un panelado de madera cemento.
La situación del núcleo se aprovechó para organizar la vivienda sin tabiquería. El nuevo núcleo de ascensor que dividía el espacio en dos, se aprovechó para zonificar (no compartimentar) el espacio, siguiendo simplemente un criterio de privacidad.
y NADA más
Se colocó un suelo nuevo, aprovechando algunos azulejos existentes que se colocarón a modo de alfombras cerámicas; se trasdosarón las medianeras con entramado de cartón yeso en blanco para aislar las medianeras acústicamente, se colocó el mobiliario y NADA más.
Obra: Rehabilitación de ático Padre Jofre
Autores : Mano de Santo –Equipo de Arquitectura (Francesc de Paula García Martínez, Ana Gil Collado, Francisco Miravete Martín)
Ubicación: C/ Padre Jofre, Valencia (España)
Año de Proyecto: 2020
Superficie Construida: 64,00m2
Fotografía: Diego Opazo
+ manodsanto.com


















