
El proyecto parte de una voluntad clara: repensar la vivienda social desde una lógica espacial que supere la dicotomía entre interior y exterior. Se articula así un sistema de llenos y vacíos que no solo configura unidades habitacionales, sino que construye atmósferas y relaciones, expandiendo la vivienda más allá de sus límites físicos e incorporando el espacio exterior como parte activa de la vida cotidiana. Este opera simultáneamente como soporte climático, lugar de interacción social y extensión programática.
Ubicado en el entorno rural de Almargen (Málaga), el conjunto apuesta por una arquitectura integrada en su contexto topográfico y climático, de alta eficiencia energética y totalmente industrializada. A través de una envolvente técnica de altas prestaciones térmicas y un sistema constructivo en seco basado en estructura ligera de acero galvanizado (Light Steel Framing), se garantiza una ejecución precisa, una notable reducción de plazos y una mayor certidumbre económica. Una estrategia que minimiza la dependencia de mano de obra especializada y maximiza la calidad del resultado final.

El proyecto se inserta en una parcela de topografía pronunciada, con un desnivel de cuatro metros entre sus dos frentes principales y una geometría radial, definida por un trazado urbano irregular.

Estas condiciones topográficas y morfológicas, junto al contexto climático —inviernos fríos, verano cálidos y secos, fuertes vientos de levante y poniente—, configuran el punto de partida proyectual, aprovechando las características del terreno para generar una arquitectura integrada en el contexto donde se emplaza.
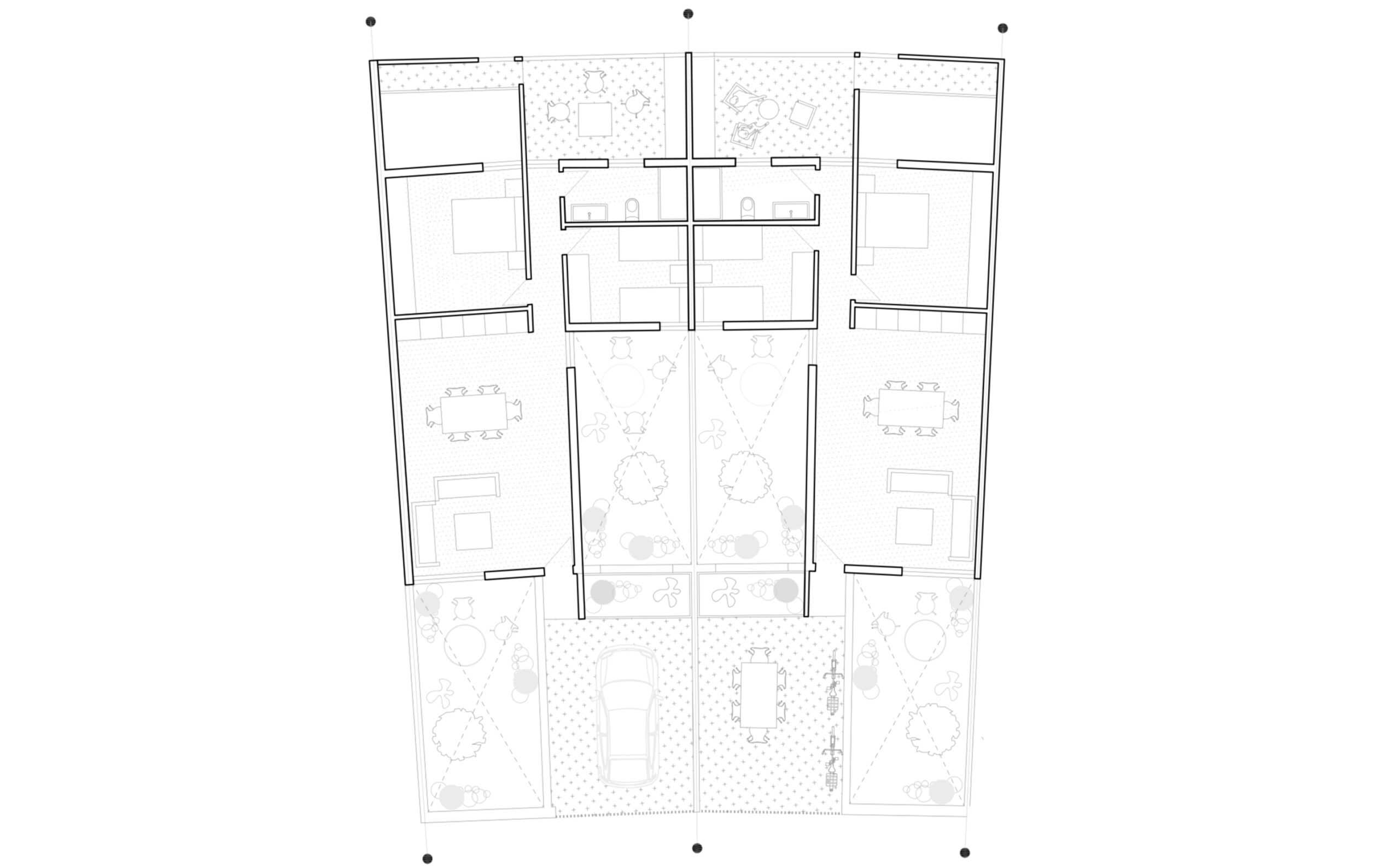
La estrategia de reparcelación radial permite subdividir la parcela matriz en siete piezas equivalentes que albergan un total de catorce unidades residenciales organizadas unas sobre otras. Las viviendas se disponen longitudinalmente en el eje norte-sur y sur-norte, y se implantan en una matriz al tresbolillo que genera una alternancia espacial que optimiza la orientación, incrementa la captación solar y favorece la ventilación cruzada.

La disposición escalonada del conjunto permite aprovechar el desnivel del terreno: las viviendas de dos dormitorios se ubican en la cota superior con acceso desde la calle Pablo Ruiz Picasso, mientras que las de tres dormitorios, parcialmente semienterradas, se emplazan en la cota inferior, con acceso desde la calle Matagallar. En ambas tipologías, el programa se desarrolla en un único nivel, optimizando las circulaciones y favoreciendo la accesibilidad.

La estrategia del tresbolillo no responde solo a criterios compositivos, sino que opera como un dispositivo de regulación ambiental. Esta configuración permite dotar a cada unidad de espacios exteriores vinculados —patios, terrazas y umbrales— que actúan como colchones térmicos y espacios de transición. Por cada metro cuadrado de superficie construida, se asignan 0,65 m² de superficies exteriores, promoviendo una domesticidad expandida y climáticamente eficiente.

Los patios, dispuestos de forma adyacente entre viviendas contiguas, conforman vacíos de mayor escala que maximizan el soleamiento en invierno y posibilitan ventilación cruzada en todas las estancias durante las noches de verano. Estas lógicas permiten reducir la dependencia de sistemas activos de climatización, activando estrategias pasivas que se integran de forma orgánica en la arquitectura del proyecto.

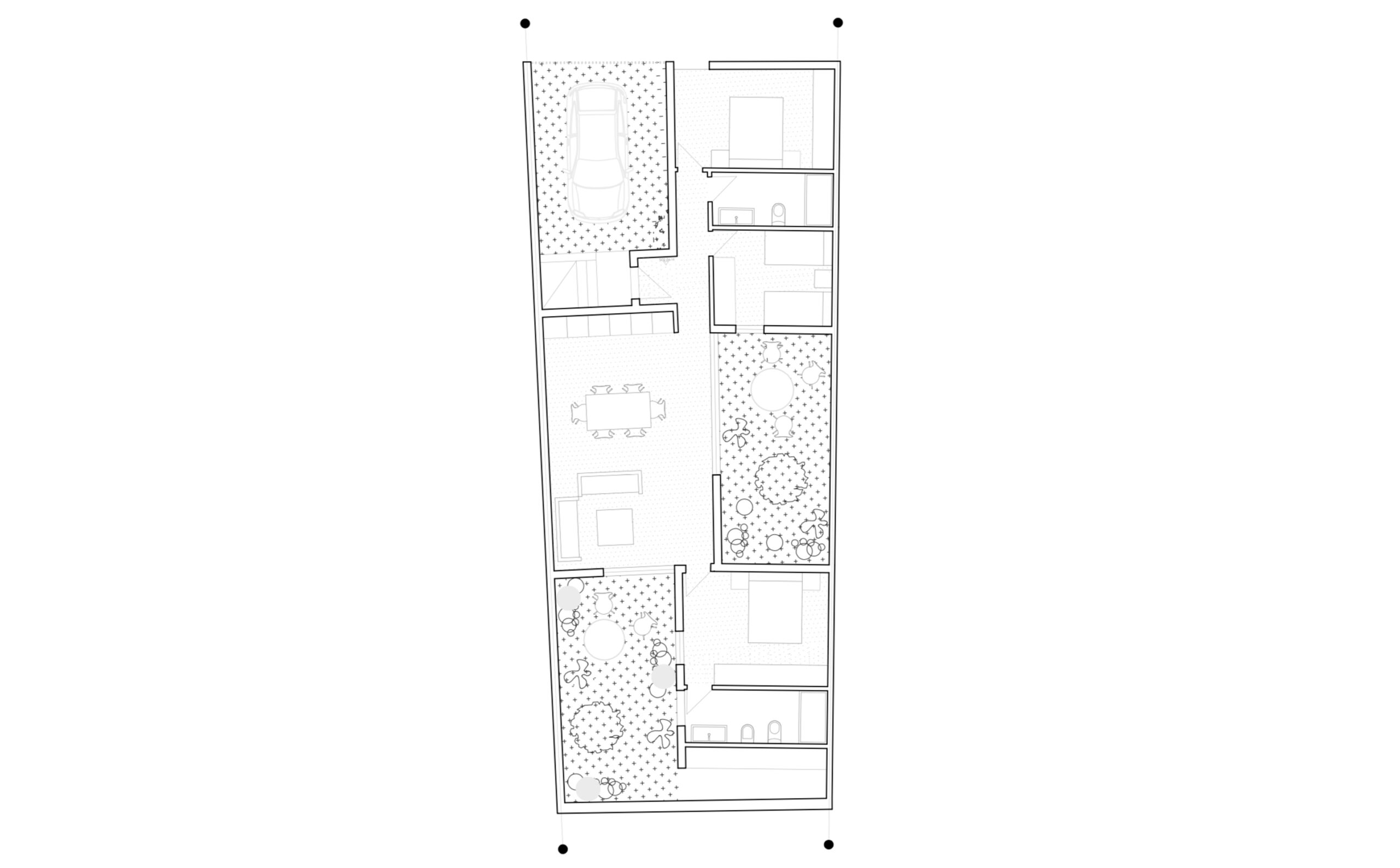
Las viviendas de tres dormitorios cuentan con tres patios diferenciados
El primero -situado al norte- se accede a través del umbral que genera la pasarela que alberga los tendederos de las viviendas situadas sobre estas. Este responde a los requerimientos normativos de reserva para zonas aparcamiento, aunque se concibe como espacio híbrido. Un ámbito de uso flexible, apropiable por el usuario, capaz de mutar entre garaje, zaguán o patio comunitario de verano. Este carácter ambiguo, donde el espacio público y el doméstico se entrelazan, favorece las interacciones sociales del vecindario.

El segundo patio, de carácter intermedio y articulado con cocina y comedor, actúa como núcleo social de la vivienda, ofreciendo una extensión exterior de la estancia principal. Por sus dimensiones y condiciones de uso, se convierte en un espacio versátil, apto tanto para lo cotidiano como para lo excepcional. Finalmente, el tercer patio, orientado al sur y vinculado al salón, se concibe como un patio de invierno, diseñado para captar la radiación solar y permitir actividades al aire libre incluso en los meses más fríos del año.

Cada patio responde a una lógica específica dentro del sistema residencial. El tratamiento de los huecos y las relaciones visuales con las viviendas colindantes se resuelve mediante una estrategia proyectual cuidadosa, que busca garantizar el máximo grado de intimidad sin comprometer la captación solar en los meses fríos.

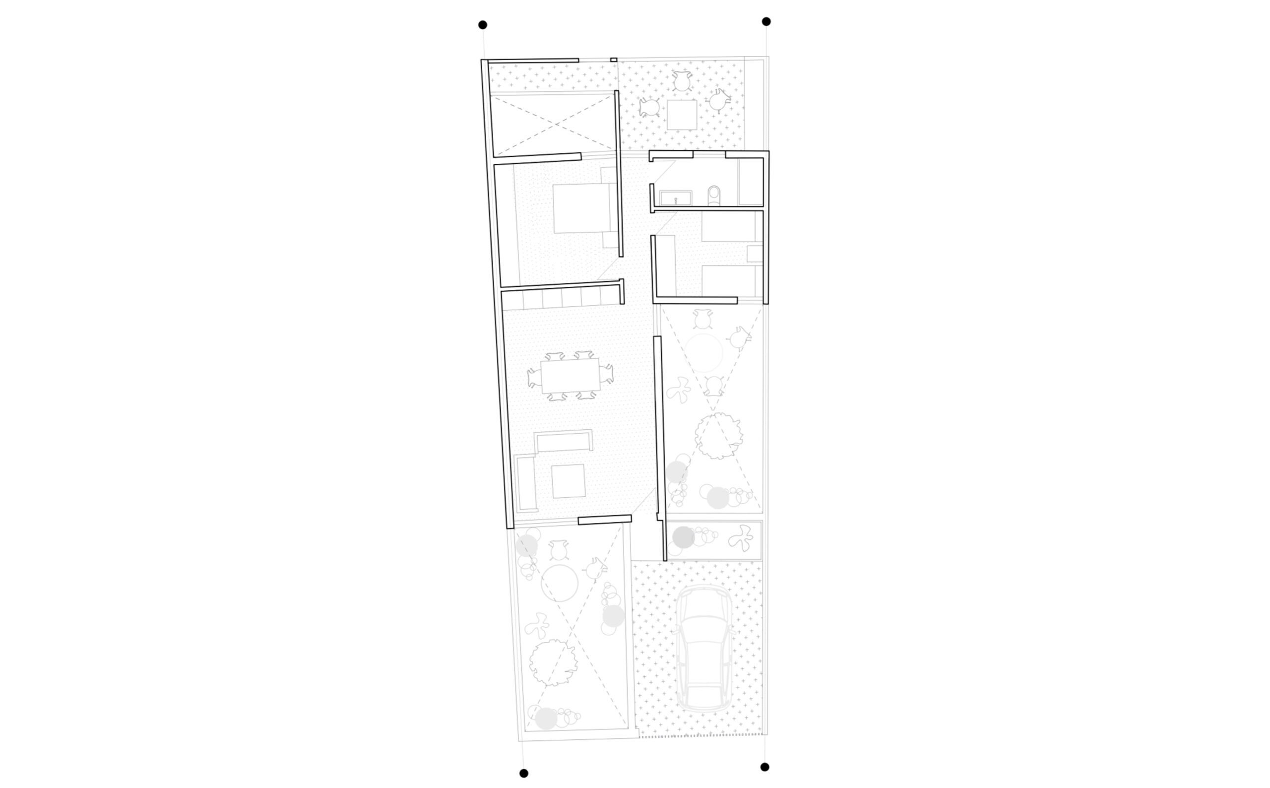
Las viviendas de dos dormitorios
Situadas en las cotas superiores de la parcela, se organizan a lo largo de su eje longitudinal sur-norte. La secuencia espacial se estructura en torno a dos ámbitos exteriores fundamentales que responden a una lógica climática precisa. En el acceso, un patio orientado al sur funciona como un espacio de transición solarmente activo, concebido como umbral intermedio entre la calle y el interior, que permite acumular calor durante los meses fríos y suavizar la entrada a la vivienda. Además de cumplir con los requisitos normativos como posible área de estacionamiento, este espacio se presenta como un ámbito polivalente, apropiable por el usuario en función de las estaciones. En el extremo opuesto, una terraza abierta al norte actúa como espacio de desahogo estival: enmarca visualmente el paisaje de olivar circundante, a la vez que se mantiene fresca y ventilada durante los meses cálidos, ampliando así las posibilidades de uso exterior en los días de mayor insolación.

La propuesta incorpora elementos arquetípicos de la arquitectura mediterránea, tales como patios interiores, terrazas accesibles y sistemas de protección solar pasiva, como son los protectores solares colocados en los huecos de las carpinterías exteriores. Debido a las altas temperaturas de los meses de verano, se torna necesario recurrir a este tipo de sistemas que protejan a los vidrios de la radiación solar directa, consiguiendo así un confort térmico óptimo en todas las estaciones del año. Los despieces de dichos protectores responden a la orientación de la fachada donde se encuentren ubicados.

Así pues, se consiguen viviendas de alta eficiencia energética con unas demandas de calefacción y refrigeración muy bajas.

Una de las particularidades clave del proyecto es su sistema constructivo completamente industrializado. Desde el forjado sanitario, las viviendas se ejecutan con estructura ligera de acero galvanizado tipo Light Steel Framing, lo que permite reducir un tercio el peso respecto a una estructura convencional y, con ello, aligerar las cimentaciones y optimizar los procesos de obra.

La envolvente se compone de paneles industrializados ligeros de altas prestaciones térmicas, diseñados con una estrategia de aislamiento continuo que elimina los puentes térmicos, mejora la eficiencia energética y maximiza la superficie útil. Esta precisión milimétrica, junto con la reducción de tiempos y la menor dependencia de mano de obra especializada, garantiza una alta calidad de ejecución, menor incertidumbre económica y mayor seguridad en obra.

Más que una solución técnica, el sistema industrializado se convierte en una herramienta para alcanzar un modelo replicable, eficiente y climáticamente sensible.
Obra: 28 patios y 14 viviendas sociales
Autor: Crearctive S.Coop. And (Carlos Arias Garnelo, Rafael González García) – Estudio RKT
Emplazamiento: Almargen, España
Año: 2024
Fotografías: Nicolás Díaz
+ crearctive.com
+ rktestudio.es




























