
Disfrutar del espacio exterior. Cocinar, comer y compartir la tarde con los amigos bajo las hojas de un denso ficus en una habitación al aire libre. Convertir el jardín existente en una estancia más de la casa para generar un oasis dentro del barrio donde trasladar gran parte de la actividad diaria, mientras gozamos del agradable clima mediterráneo.

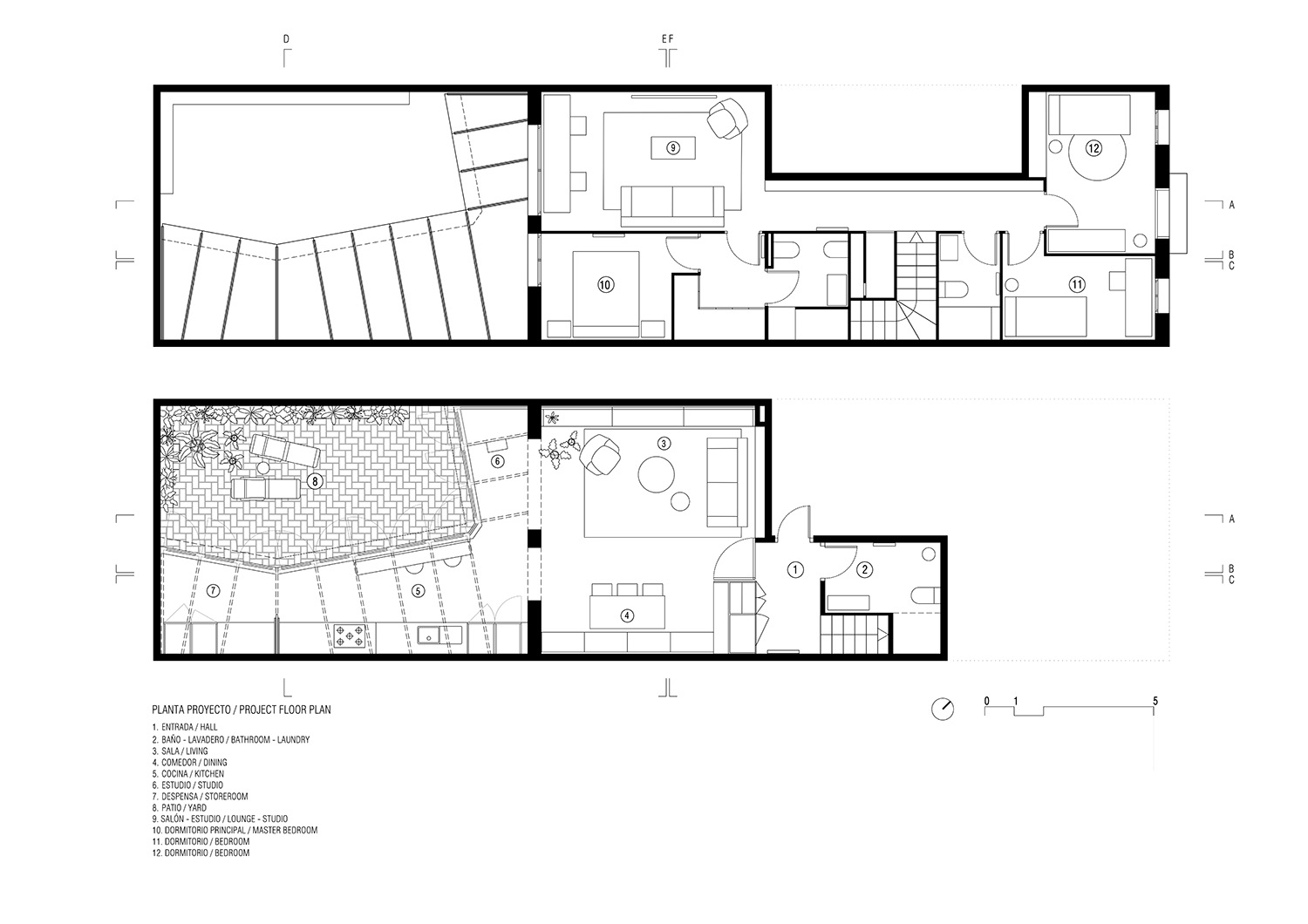
El proyecto consiste en la reforma y ampliación de una vivienda de dos plantas con un pequeño jardín ubicada en los bajos de una finca entre medianeras.

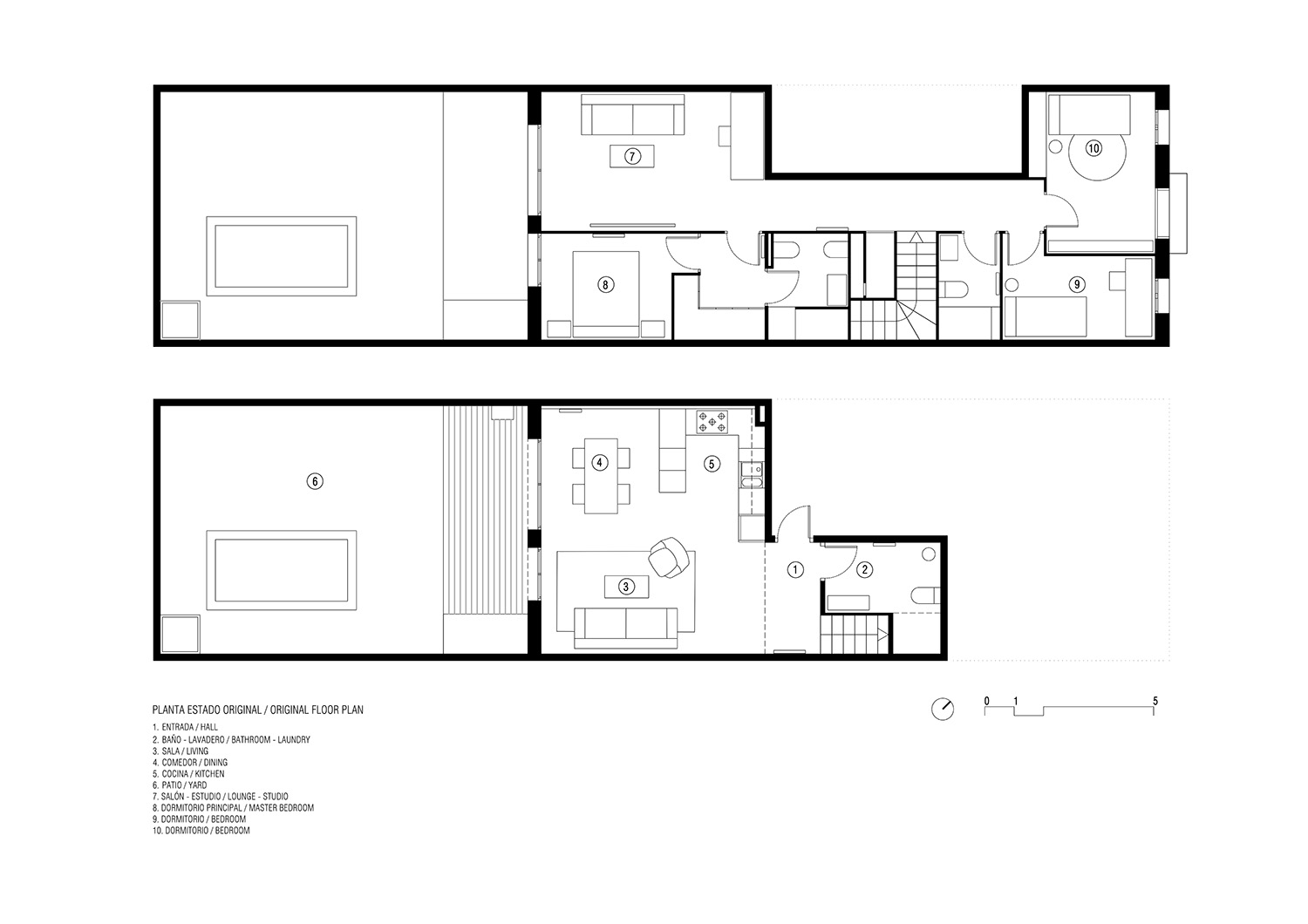
La casa existente disponía de cocina y comedor en planta baja, en contacto con el jardín, y habitaciones en la planta primera, pero no tenía salón. La premisa de partida por parte de los clientes consistía en reformar la casa y ampliarla dotándola de este nuevo espacio en contacto con el exterior.

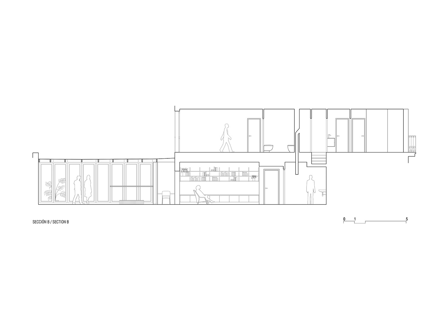
La propuesta empieza reformulando la pregunta y, en lugar de ampliar la casa con esta pieza, trasladamos la cocina al exterior para poder liberar espacio en el interior para el salón y el comedor. De esta manera conseguimos que todas estas piezas estén en contacto con el espacio exterior y que desde todas ellas logramos unas visuales largas entre ellas y hacia el jardín.
El nuevo volumen se realiza con una estructura de madera y vidrio, como un invernadero, en una ubicación donde, por las sombras del propio edificio y las de los vecinos, nunca hay una gran insolación. Por otra parte, al ser una pieza tan transparente, conseguimos que el resto de la planta baja continúe disfrutando de luz natural.

La nueva fachada de la ampliación se separa de la vertical de la finca mostrando los dos arcos que originalmente encerraban el espacio interior y que ahora actúan como tránsito entre el salón–comedor y la nueva galería con la cocina y el estudio. Al separar la fachada de la vertical de la finca, la nueva envolvente se libera de las directrices del edificio existente, realizando unas pequeñas inflexiones que permiten más espacio en las zonas de mayor actividad, tanto en el interior como en el propio patio.

En la planta primera de la vivienda se realizan pequeños cambios en el mobiliario de las habitaciones y se reformula la sala / estudio, con la voluntad de no intervenir en aquellas zonas donde no es estrictamente necesario.
Obra: Green House.
Autor: Anna & Eugeni Bach / Bach arquitectes
Fecha de finalización de la obra: 2024
Superficie construida: 150 m2
Promotor: Privado
Constructor: Restyle Works SL
Emplazamiento: Sants, Barcelona (España)
Fotografías: Eugeni Bach
+ annaeugenibach.com



























