
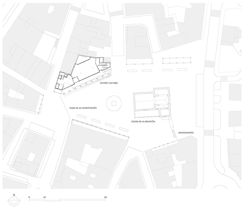
El Centro Cultural se localiza en el centro urbano del municipio, en la Plaza de la Constitución. En esta plaza destaca la presencia aislada de la antigua Iglesia de la Asunción, única edificación que mantiene el pálpito histórico en un contexto heterogéneo y muy renovado debido al importante crecimiento demográfico de la población, muy próxima a la ciudad de Salamanca.

La nueva edificación se asienta en el lugar eligiendo como referencia lo mejor de él: la iglesia, su pórtico de acceso, la hilera columnada, su carácter ligero y abierto constituyó el referente formal de partida. El Centro Cultural se inscribe en un gran portal, una galería abierta que nos sumerge en la historia de edificaciones, como las Stoas, concebidas para el uso popular, construcciones permeables y flexibles funcionalmente. El pórtico, que sale al encuentro de la plaza, durante el día protege de la incidencia solar dando intimidad al espacio interior, y desde el interior nos proporciona la ficción de estar fuera, ambigüedad que se invierte al anochecer, cuando el espacio interior se proyecta hacia el exterior a modo de una escenografía cuyos protagonistas son las personas entregadas a distintas tareas culturales, que nos invitan a participar de las mismas.

El orden ritmado de la logia se sintetiza con un espacio interior libre y fluido capaz de acoger un programa cultural diverso desarrollado sobre una planta de morfología triangular irregular en distintos niveles sobre rasante, al ser desestimada finalmente por parte de la propiedad la realización del salón de actos que ocupaba el nivel de sótano y que estaba contemplado en la propuesta del concurso de anteproyectos; el patio posterior y el vacío del vestíbulo, también de base triangular, que iluminaban el espacio del sótano, se mantuvieron aunque quedando algo huérfanos de su mayor entidad funcional y espacial en la propuesta del concurso.
La disposición de los núcleos de servicios y de comunicación vertical en los extremos de la planta facilitan la distribución del programa, liberando el espacio intermedio; la circulación interior entre los núcleos servidores se complementa con otra exterior a través de corredores que también funcionan como espacios de expansión y lectura al aire libre.

En el nivel de la plaza se encuentra el vestíbulo y control de acceso junto a una sala polifuncional que se unifica con el espacio exterior mediante correderas de grandes dimensiones. En el primer nivel se disponen las aulas para docencia y desarrollo de actividades culturales diversas. La biblioteca ocupa los últimos niveles, comunicados mediante una escalera interior; el espacio de doble altura que los relaciona visualmente se abre al pórtico exterior, donde una terraza sirve de lugar de expansión para la lectura.

Este nuevo equipamiento cultural se asienta en la historia, la tradición heredada, que supone una lección permanente y desea ser un espacio de participación, un lugar de encuentro y hogar cultural de los ciudadanos.
Obra: Centro Cultural Carbajosa de la Sagrada
Autor: Gabriel Gallegos Borges
Colaboradores:
Arquitecto colaborador: Gabriel Gallegos Alonso
Dirección de ejecución de la obra: José Miguel Sanz Bayón
Técnicos supervisión municipal: Luis Parada, Roberto Llamazares
Instalaciones. Proyecto inicial: José Miguel Cámara Rey, ing. industrial
Instalaciones. Proyecto modificado y D.O.: Juan María Vaquero, ing. técnico industrial
Cálculo estructura: Félix Camazón Carvajal, PEJARBO
Promotor: Ayuntamiento de Carbajosa de la Sagrada
Empresa constructora: U.T.E. Construcciones Cueto S.A. y Garcia de Celis S.L.
Jefe de obra: Luis Nieto
Superficie: 1293,38 m2
Año: 2024
Emplazamiento: Plaza del Ayuntamiento, Carbajosa de la Sagrada (Salamanca, España)
Fotografía: Gabriel Gallegos Alonso
























