
La rehabilitación de la Casa de la Cultura de Balsapintada, enmarcada en el Plan PIREP y alineada con los principios de la Nueva Bauhaus Europea, es una actuación impulsada por el Ayuntamiento de Fuente Álamo de Murcia que hace posible la recuperación de un edificio existente como nuevo corazón cívico del municipio. En un núcleo de 1.719 habitantes, el proyecto no solo mejora el equipamiento, sino que también revitaliza la plaza y los espacios exteriores vinculados, consolidándolos como principal lugar de encuentro social y cultural. A través de un proceso participativo, se definió un objetivo claro: hacer el edificio más accesible, abierto y activo, garantizando su uso durante todo el año mediante actividades culturales, lúdicas y comunitarias.

Una de las principales fortalezas del equipamiento es su ubicación frente a una de las plazas principales del municipio, un espacio de marcado carácter cívico que funciona como punto de encuentro y cohesión social. Esta condición refuerza el papel central del edificio en la vida cotidiana del pueblo y favorece su integración con la dinámica urbana.
Se prioriza el reaprovechamiento de las infraestructuras existentes, manteniendo la estructura y los elementos principales del edificio. Esta estrategia permite conservar su identidad arquitectónica, al tiempo que se incorporan mejoras técnicas para garantizar un comportamiento térmico adecuado. Mediante la incorporación de aislamiento y la renovación de elementos de la envolvente, se optimiza la eficiencia energética sin comprometer la funcionalidad ni la imagen final del conjunto.

La intervención aborda la mejora de la imagen exterior, ya que la fachada original presentaba un aspecto envejecido que no reflejaba el valor social activo del centro. Para ello, se propone una transformación de la envolvente mediante chapa metálica en tonos azul verdoso con detalles en rojo, renovando la identidad del edificio y reforzando su presencia como hito urbano. Esta nueva piel permite unificar los tres bloques construidos en distintas fases, integrándolos tanto formalmente como desde el punto de vista funcional. A nivel compositivo, se homogeneiza el conjunto mediante la continuidad del zócalo y la coronación, junto con una paleta cromática coherente que refuerza la lectura de un único equipamiento.

Paralelamente, la actuación se orienta a actualizar el edificio conforme a las exigencias normativas vigentes, mejorando la calidad de los acabados interiores y su eficiencia energética. La intervención en la envolvente no solo mejora la estética, sino que también optimiza el comportamiento bioclimático: la chapa perforada filtra la luz natural y protege del soleamiento directo, reduciendo la demanda energética. En el interior, los espacios se reorganizan con criterios de flexibilidad, incorporando divisiones móviles que permiten el uso simultáneo del salón principal. Se completa además la digitalización del edificio, con control de accesos y gestión energética, convirtiéndolo en un equipamiento contemporáneo, NZEB (energía casi nula), accesible y profundamente humano. El uso de luz natural, la vegetación y los materiales naturales refuerzan la sensación de bienestar, alineando el proyecto con estándares de diseño centrado en la salud y el confort de las personas.
La nueva fachada contribuye también a mejorar el confort exterior. La chapa metálica actúa como protección solar, generando sombras proyectadas hacia la plaza y favoreciendo espacios más habitables para el uso cotidiano de la comunidad. Esta estrategia refuerza la relación entre el edificio y el espacio público, ampliando las posibilidades de encuentro y permanencia en el exterior.

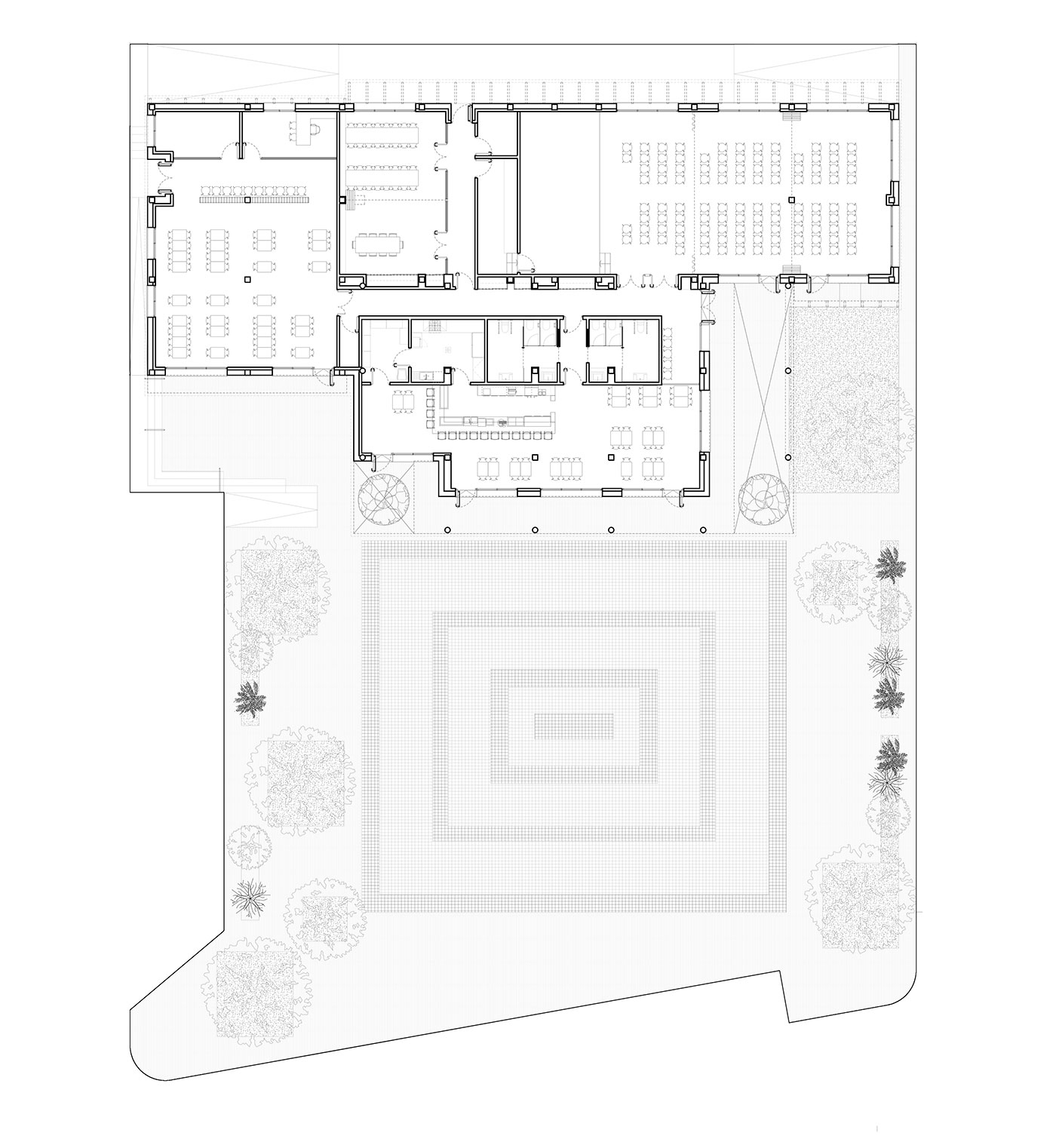
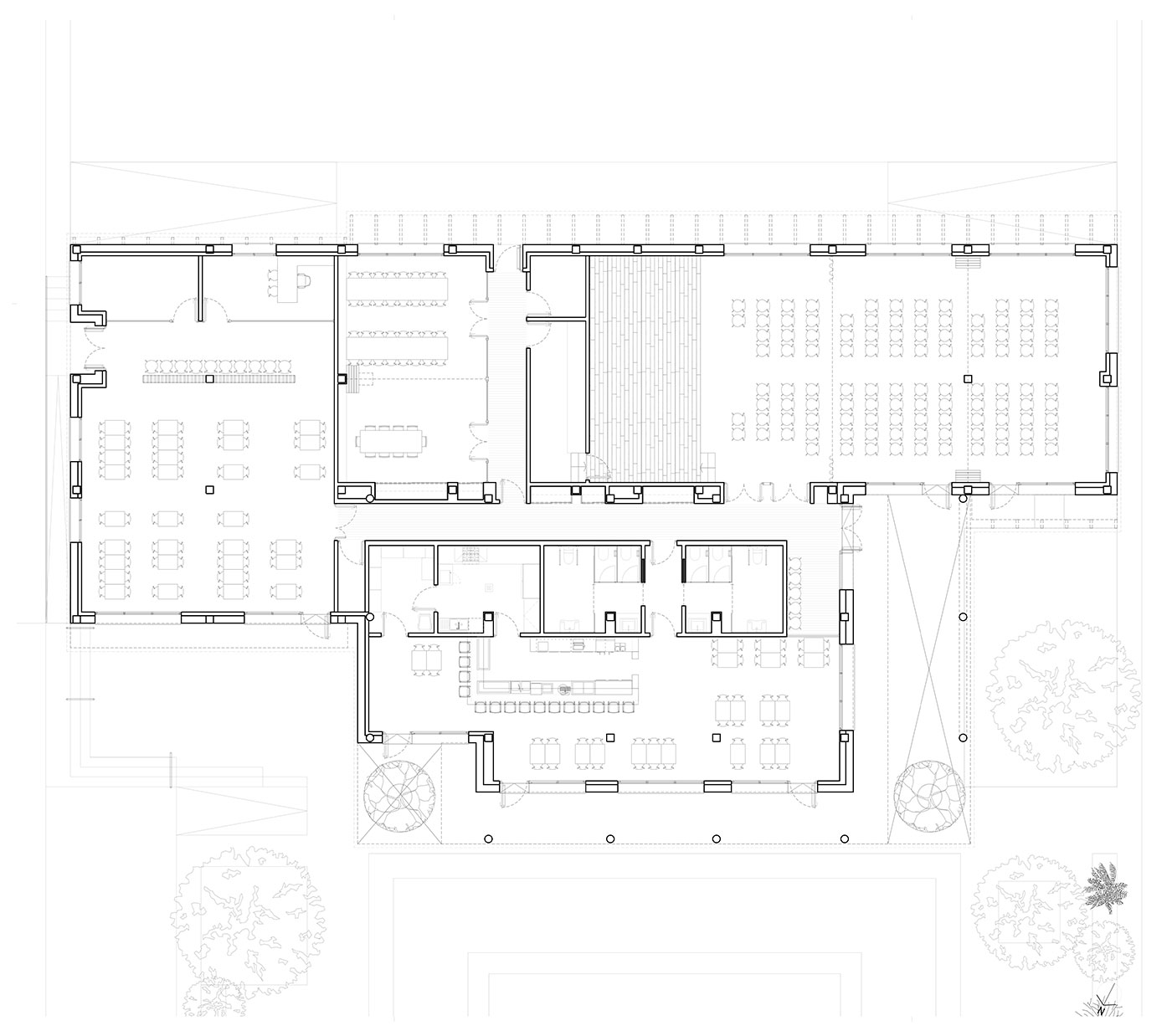
Al tratarse de un único nivel, el acceso y la circulación interior se han organizado para facilitar la independencia y simultaneidad de los diferentes usos, con espacios polivalentes que se pueden adaptar a múltiples actividades. Esta disposición promueve la accesibilidad y la seguridad para todos los usuarios, desde los más jóvenes hasta los mayores, evitando interferencias y facilitando el encuentro en un entorno cómodo y flexible.

En el interior, se incorporan salas polivalentes con particiones móviles, despachos y espacios que permiten una relación más fluida con el exterior a través de nuevas salidas. En este sentido, el proyecto mantiene la asociación de mayores en su ubicación original dentro del edificio, integrándola de forma más armónica con el conjunto gracias a la mejora de las circulaciones interiores. Esta mejora favorece la conexión entre los diferentes espacios y potencia el uso simultáneo de las distintas áreas, facilitando la convivencia y el acceso para todos los usuarios.

La Casa de la Cultura es un ejemplo claro de reutilización adaptativa. En lugar de demoler y construir de nuevo, se ha aprovechado la estructura existente, su huella urbana y su carga simbólica, actualizándolas con criterios de sostenibilidad, eficiencia y resiliencia. Este enfoque no solo reduce el impacto ambiental asociado a la obra nueva, sino que prolonga la vida útil del edificio, demostrando cómo transformar una infraestructura obsoleta en un nuevo centro de gravedad social.
Obra: Casa de Cultura de Balsapintada
Autor: COR Architecture + Design (Miguel Rodenas y Jesús Olivares)
Año: Inicio proyecto: Octubre 2023 / Finalización obra: Agosto 2025
Superficie Construida: 724,05 m2
Ubicación: Balsapintada, Fuente Álamo de Murcia (Murcia, España)
Créditos adicionales: Proyecto enmarcado en el Plan de Recuperación, Transformación y Resiliencia. Financiado por la Unión Europea. NEXTGENERATIONEU
Cliente: Ayuntamiento de Fuente Álamo de Murcia
Arquitecto/a técnico: COR Architecture + Design
Constructor: INFRAESTRUCTURAS Y FERROCARRILES, S.L.
Fotografía: Milena Villalba
+ cor.cc
























