
Construir con la lógica del territorio
Casa Saiar, una vivienda unifamiliar situada en el disperso rural de Caldas de Reis que aborda una cuestión central en el contexto actual: cómo intervenir en el medio rural desde la contemporaneidad sin romper su lógica territorial.

La parcela, organizada históricamente para hacer productiva la pendiente, conserva un socalco de granito y un carballo que actúan como referencias físicas y espaciales. El proyecto asume estos elementos como punto de partida, incorporándolos a la estrategia arquitectónica y estructural de la vivienda.

La vivienda se implanta en una parcela del disperso rural gallego marcada por un carballo de cincuenta años y un antiguo socalco de granito que ordenaba la pendiente productiva del terreno.

Arquitectura como conector entre cotas
La intervención articula los dos niveles originales del terreno mediante una pieza que funciona como elemento conector. Se desmonta un tramo del muro de granito para permitir el acceso rodado y peatonal, resolviendo el vacío mediante un dintel de hormigón visto que recompone la continuidad estructural del conjunto.

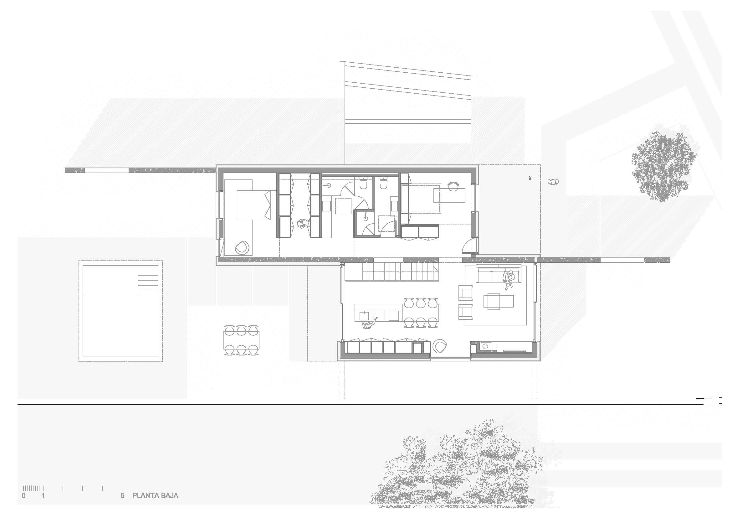
La planta inferior alberga el garaje, el acceso peatonal y un espacio social vinculado a una bodega, en coherencia con la tradición vitivinícola de la zona. Este ámbito se abre a un patio contenido que introduce iluminación natural y amplía el uso hacia un exterior protegido y de escala doméstica.

Dos muros que estructuran la vida doméstica
La planta superior se organiza a partir de dos muros paralelos de hormigón visto que fragmentan el volumen y ajustan su escala a la dimensión de las crujías tradicionales del entorno rural gallego.

Estos muros generan dos cuerpos desplazados entre sí: uno alberga el porche de acceso, el despacho y el dormitorio; el otro se destina a una zona de día diáfana. La conexión entre ambos se produce a través de un paso alineado con una gran ventana frontal que sitúa el carballo como referencia constante en los recorridos interiores.

La prolongación de los muros hacia el exterior define pequeñas áreas protegidas asociadas a las estancias principales, reforzando la continuidad entre interior y paisaje.

Un sistema estructural basado en dos muros paralelos de hormigón visto organiza el programa doméstico y fragmenta la escala del volumen.

Materialidad y adaptación climática
La selección material responde a criterios de proximidad y coherencia constructiva. El hormigón visto establece un diálogo directo con el granito existente; la fachada trasventilada de pino termotratado protege las zonas habitables y permite un comportamiento adecuado frente a la humedad y la lluvia atlántica.

Los áridos procedentes de la gravera local consolidan la continuidad material con el territorio. La vivienda asume el envejecimiento como parte del proyecto, integrándose progresivamente en el paisaje gallego.

Materiales de proximidad —pino gallego termotratado, granito y áridos de la cantera local— construyen una arquitectura integrada en el paisaje atlántico y adaptada al clima.

Una casa para el nuevo contexto rural
Casa Saiar responde a un perfil contemporáneo de habitantes que desarrollan su actividad profesional en remoto y buscan compatibilizar concentración, vida doméstica y relación directa con el entorno natural.

El proyecto plantea una arquitectura donde estructura, topografía y uso se alinean, ofreciendo una respuesta precisa a las transformaciones actuales del medio rural gallego.
Obra: Casa Saiar
Ubicación: Caldas de Reis, Pontevedra, España
Autores: Castroferro Arquitectura (María González Ferro + Jordi Castro Andrade)
Colaboradores: Jacobo Pérez Castiñeiras, Laura Vázquez Seoane, Ana Prado Rodríguez
Arquitecto técnico: Daniel Ojea Maigler
Constructora: Aplus Constructores Gallegos SL
Superficie: 195 m²
Año: 2021-2025
Fotografía: Héctor Santos-Díez
+ castroferro.com



















