
Un oasis que reivindica la arquitectura introspectiva
“¿Os habéis olvidado de las ventanas?”
preguntó una vecina —con esa retranca inevitable de los pueblos— mientras cotilleaba el interior de la casa a través de la puerta entreabierta.
En los pueblos, la comunicación —y más aún la indiscreta— es el mortero que mantiene unidos los vínculos sociales (y espaciales). Sin embargo, lo primero que llama la atención de Casa JAR es que, hacia la calle, es radicalmente reservada.

Casa JAR es una vivienda introspectiva proyectada por Estudio Nada y Crux Arquitectura, donde una sucesión de cubos programáticos abraza un gran patio central que actúa como pulmón verde y espacio social.
La cosa cambia al cruzar el umbral. La vivienda comienza a desarrollar su argumento: un patio central con agua y vegetación organiza todo el proyecto. La casa se convierte en un oasis doméstico, un refugio climático y social donde la vida cotidiana se despliega hacia el interior.
Frente al modelo dominante del entorno —la casa aislada rodeada de un jardín perimetral— el proyecto propone exactamente lo contrario: un vacío en el centro y un lleno en el borde.

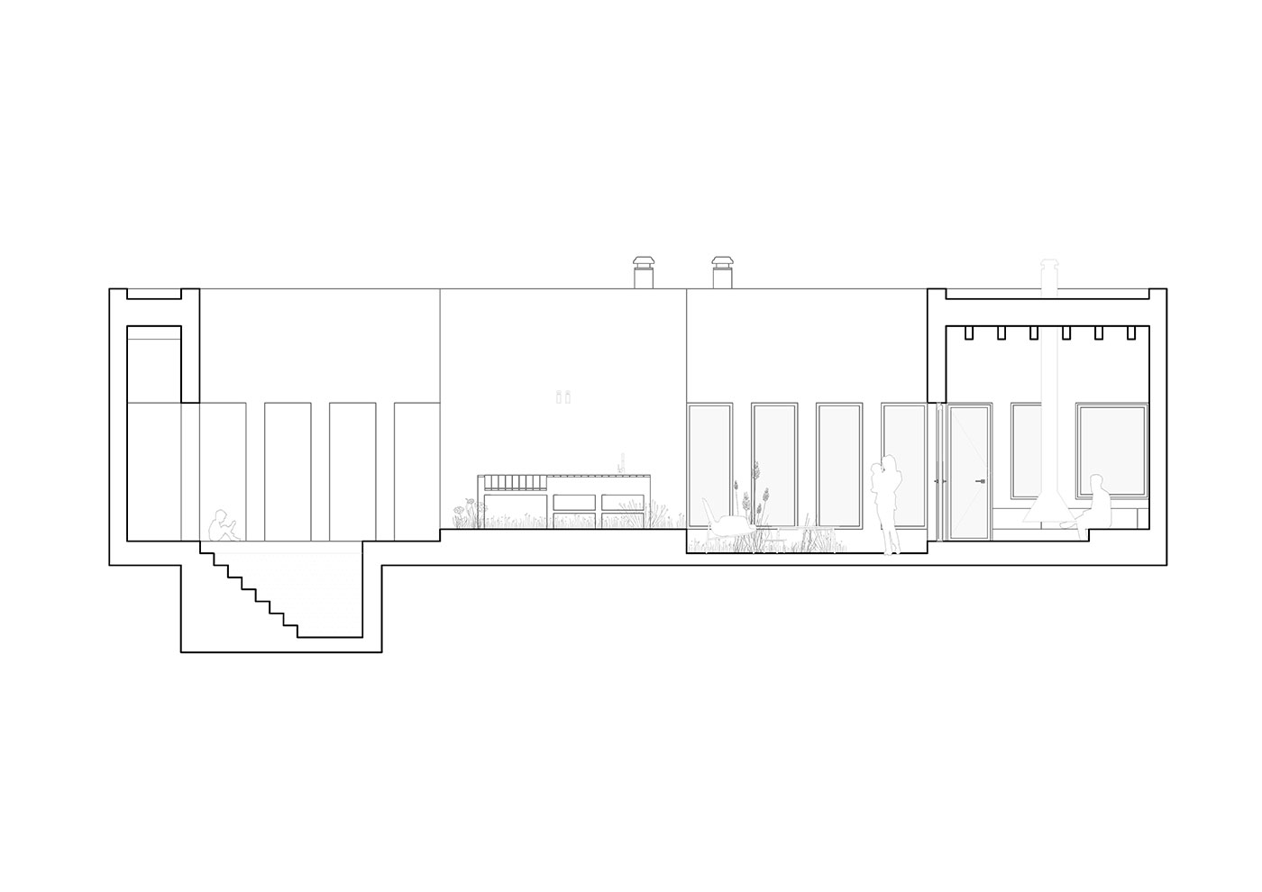
La casa como sistema de patio
La vivienda se organiza a partir de una operación sencilla: vaciar el centro y ocupar el perímetro de la parcela. Es un solar de geometría trapezoidal, el proyecto concentra las estancias en los límites y libera un gran patio central que estructura la vida doméstica.
La planta funciona como un claustro doméstico contemporáneo: una sucesión de estancias casi cúbicas que se adhieren a los lindes del solar, mientras el patio liberado se convierte en el corazón de la casa.
Una promenade arquitectónica: los cubos y el ritmo
La distribución se organiza mediante una serie de volúmenes o ‘cubos’ conectados entre sí, generando un recorrido perimetral continuo. No hay pasillos residuales; la vivienda se recorre como una secuencia fluida de estancias que orbitan alrededor del patio, convirtiendo el tránsito en una experiencia en sí misma.
Las zonas de día —cocina abierta, comedor y salón con chimenea— se sitúan en las alas más amplias, favoreciendo la vida social. La zona de noche se desarrolla en la banda opuesta, garantizando privacidad sin perder la relación con el exterior.

El suelo se moldea generando una suave topografía que acompaña el recorrido y define usos: peldaños que se transforman en bancos corridos o desniveles que acogen la zona de estar frente a la chimenea.
La estructura de vigas de madera cambia de dirección en cada estancia, reforzando la independencia de cada cubo programático y marcando un ritmo espacial que ordena el conjunto.
El Patio: Pulmón, Termostato y Ágora
El patio no es solo un elemento formal, sino un auténtico dispositivo climático y social.
Las aberturas enfrentadas permiten una ventilación cruzada constante, mientras los muros macizos de gran inercia térmica amortiguan las variaciones de temperatura.

En el centro del patio, el promotor decidió plantar un almez (Celtis australis), árbol emblemático del pueblo y símbolo de la memoria familiar. Su presencia convierte el patio en un pequeño paisaje doméstico donde naturaleza e historia se entrelazan.
La lámina de agua y la zona de barbacoa hacen de este espacio la extensión natural del salón y la cocina, configurando el verdadero corazón social de la vivienda.
Materialidad: La honestidad de lo austero
La paleta de materiales de Casa JAR es una oda a la construcción vernácula mediterránea, evitando artificios innecesarios y buscando la textura, la pátina y la naturalidad.
La estructura y las carpinterías de madera aportan calidez y ritmo al espacio. Los revestimientos de cal, yeso y bardo cerámico introducen materiales porosos que respiran y ayudan a estabilizar el ambiente interior.

La gama cromática se mantiene deliberadamente neutra —blancos, tierras y maderas— para ceder el protagonismo a la vegetación del patio.
El mobiliario, sencillo y austero, incorpora tejidos naturales que introducen las notas de color justas y refuerzan el carácter doméstico del conjunto.

Casa JAR es, en palabras de sus autores,
“un silencio público y una celebración íntima”.
Frente a la curiosidad vecinal por la ausencia de ventanas a la calle, la casa responde con un mundo interior rico y complejo.
Un proyecto que demuestra que el verdadero lujo no reside en la ostentación de la fachada, sino en la calidad del espacio, la luz, la sombra y la capacidad de la arquitectura para reunir a las personas alrededor de un árbol, una mesa y una historia.
Y, por supuesto, al final le enseñamos la casa a la vecina. Nos dijo que le gustó mucho.
Obra: Casa JAR
Autores: Crux Arquitectura (Raquel Sola Rubio, Alejandro Gª Pedrón, Carla Lucía Ruótolo) | Estudio Nada (Borja Hernández y Arcadi Martín)
Ubicación: Jarafuel, Valencia (España)
Año: 2025
Superficie: 205 m²
Fotografía: Milena Villalba
+ cruxarquitectura.com
+ estudionada.com




























