
El círculo, inspirado en la morfología dental, se convierte en el hilo conductor del proyecto y en el lenguaje arquitectónico que traduce la práctica odontológica en espacio. Esta geometría orgánica, evocando la morfología esencial de los dientes en su vista superior, se despliega en volúmenes, luminarias, identidad corporativa así como detalles constructivos, generando una identidad coherente y única. Por ejemplo, los recortes circulares sobrantes del portón de acceso se transforman en un aplique mural retroiluminado.

En el interior, la composición se organiza a partir de volúmenes circulares que suavizan los recorridos y redefinen los límites espaciales de la parte central de la planta. Estos elementos, revestidos en madera natural y chapa plegada microperforada, contrastan con la pureza de los planos blancos y la textura ligera de los cerramientos.
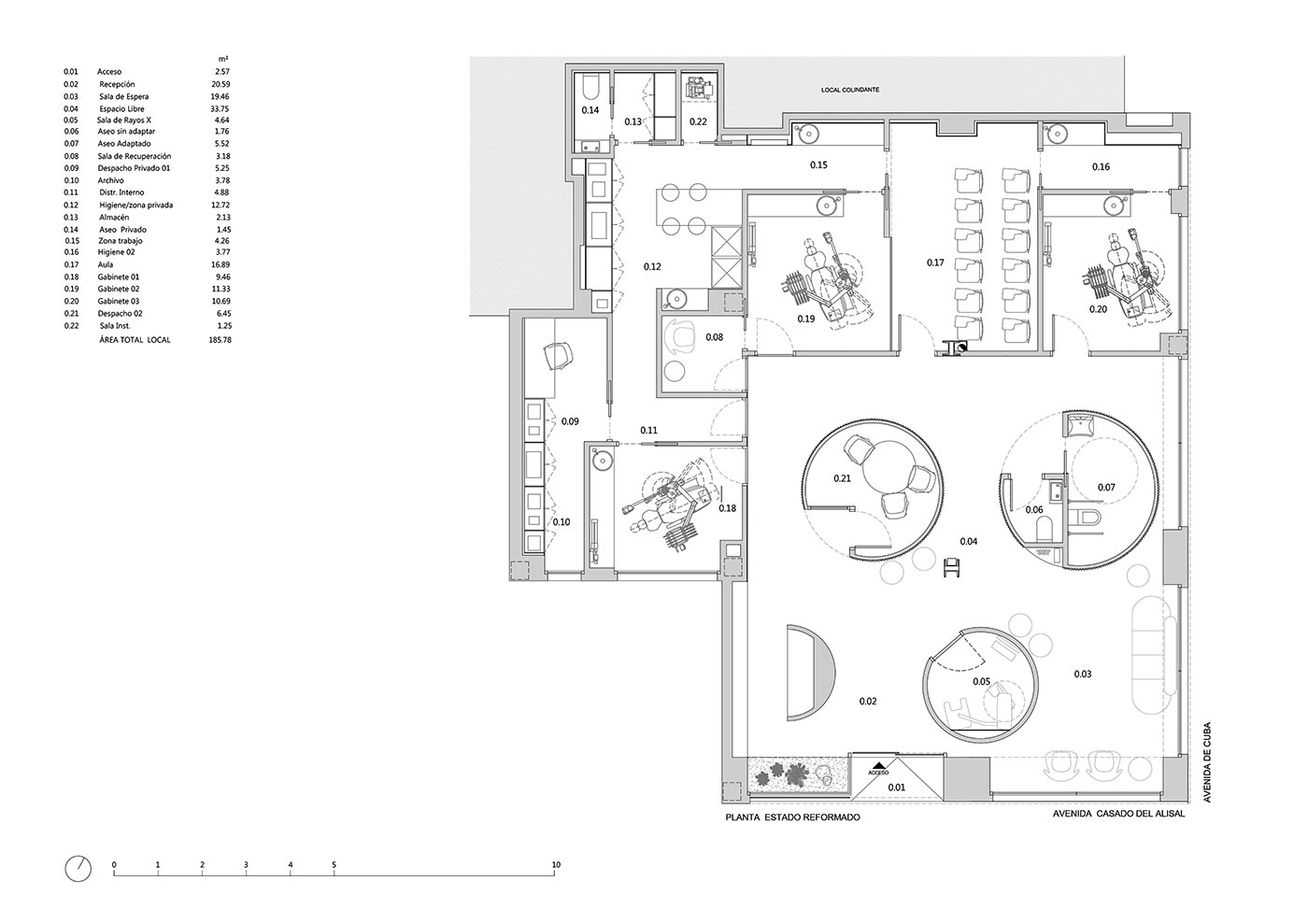
La elección de formas orgánicas centrales confronta con la organización más ortogonal del programa dental que se desarrolla en el perímetro. Esta franja responde a criterios funcionales y sanitarios, con circulaciones jerarquizadas que garantizan dobles recorridos: uno público, que conecta la ‘’zona pública’’ con los gabinetes, y otro interno, reservado al personal para el acceso rápido a higienes, esterilización y almacenes. Los gabinetes se disponen alineados, permitiendo una secuencia eficiente y ordenada que facilita la supervisión, la limpieza y la privacidad en las intervenciones. Esta estructura ortogonal optimiza la relación entre las áreas clínicas y los espacios de apoyo, mientras que el núcleo central curvo se convierte en un espacio de transición amable y de identidad.

En el exterior la fachada se abre al entorno urbano con un gesto sobrio y elegante. El uso de superficies limpias y transparencias invita a cruzar el umbral, donde la continuidad visual entre exterior- interior genera una atmósfera de calma. La fachada se realiza con la misma chapa microperforada utilizada en el interior, pero colocada en la franja superior, contraponiéndose al vacío del interior y estableciendo un juego de dualidad entre los espacios interior y exterior. El cuerpo inferior de la fachada se forra con un aplacado de chapa de acero inoxidable, que completa la composición y aporta solidez y contraste al conjunto.
La disposición circular de los espacios fomenta la fluidez y refuerza la idea de movimiento continuo. La iluminación, tanto natural como artificial, potencia la percepción de amplitud y refuerza la sensación de serenidad. Cada detalle, desde la recepción hasta las áreas de espera y consulta, está diseñado para generar confianza, confort y bienestar.

Así, la clínica se configura como una representación arquitectónica del universo dental, donde la precisión de la forma y la suavidad de la curva transmiten confianza, excelencia y cercanía.
Obra Policlínica Dental Pérez-Arroyo
Autor: David Hernández Arquitectura y Murillo Arquitectos
Arquitecto(s) a cargo: David Hernández Martin y Sergio Murillo Moreno
Ubicación: Avenida Casado del Alisal Nº49 Pl00 Pt02 Palencia – 34001
Año finalización construcción: 2025
Superficie construida (m2): 212 m²
Ejecución de la Obra: Polcubor S.L
Fotografía: Gabriel Gallegos
+ dhernandezarquitectura.es
+ murilloarquitectos.com
























